Register InterestRegister

Highcroft

Wallingford, OX10 0FN

£320,000 - £900,000

  • Traditionally styled, quality homes.
  • 2.2 acres of new sports pitches plus a children’s play area and allotments
  • New on-site primary school
  • Short walk to Wallingford town

Sales & Marketing Suite and Showhome (where available) details:
Open 7 days a week, 10am - 5pm.
Calvin Thomas Way, Wallingford, OX10 0FN.

Register Interest
Own New Logo
Lower your mortgage rate with Own New Rate Reducer. Find out more 

Properties in Highcroft

For more property availability information please contact our Sales Team.
An exterior image of the apartments building at Highcroft
An interior Living / Dining image from the show apartment at Highcroft
An interior Hallway image from the show apartment at Highcroft
An interior Bedroom image from the show apartment at Highcroft
An interior Kitchen / Dining image from the show apartment at Highcroft

New Show Apartment Now Launched

Book a viewing to experience our stunning newly decorated and fully furnished apartment. Discover stylish interiors, thoughtful layouts, and beautiful finishes designed for modern living.

Book a Viewing

An exterior photograph of the 5 Bedroom Showhome at Highcroft

New 5 Bedroom Showhome

Introducing The Daffodil, Highcroft’s stunning new five-bedroom showhome. Spanning three storeys, this beautifully designed home features elegant traditional interiors, thoughtfully styled with families in mind. With a fabulous games room and a spacious garden, The Daffodil offers the perfect blend of comfort and luxury.

Book a Viewing

House & Apartment Types

An exterior image of the Apartments at Highcroft

Bluebell Apartments

The Bluebell Apartments are home to 19, one and two bedroom apartments located across three floors. One bedroom apartments are complemented with a separate study, proving the perfect set up for those who work from home. While, a number of the two bedroom apartments enjoy a private balcony. With inspiring design-led layouts, the Bluebell Apartments have been meticulously crafted to provide the perfect place to call home.

View Brochure

Exterior image of The Violet

The Violet

The Violet is a beautifully designed three bedroom, two bathroom terraced house with a separate kitchen and open plan living and dining area. The Violet offers a private garden, providing the perfect space to relax, unwind and entertain.

View Brochure

Exterior picture of The Aster

The Aster

A 3-bedroom, 3-bathroom, 952 sq ft semi-detached home. The Aster features an open-plan living and dining area with a separate kitchen located at the front of the home. The principal bedroom includes an en-suite with a walk-in shower. The home is complete with a garden to enjoy.

View Brochure

Exterior phot of The Daisy

The Daisy

A 3-bedroom, 3-bathroom 927 sq ft semi-detached home. On the ground floor you’ll love the spacious living and dining area, that seamlessly connects to your garden through a set of elegant French doors. As you go upstairs you'll be greeted by the three inviting bedrooms and a conveniently located family bathroom. The principal bedroom enjoys fitted wardrobes an en-suite with a walk-in shower.

View Brochure

Exterior photo of The Honeysuckle

The Honeysuckle

Part of our new release in Heronsbrook place, The Honeysuckle is a beautifully designed 3 bedroom semi-detached house. This home features an open plan living, dining room and separate kitchen. The home also has an en-suite to bedroom 1 and family bathroom as well as a rear garden.

View Brochure

Highcroft - The Cornflower showhome

The Cornflower

The Cornflower is beautifully designed with modern interiors and energy efficient appliances. This spacious home consists of 1627 sq ft with two ensuite bathrooms and private parking. This home is perfect for family living with a study / family area, separate utility room and 4 bedrooms with built in wardrobes.

View Brochure

An exterior CGI of The Orchid at Highcroft

The Orchid

The Orchid is a stunning 4-bedroom, 3-storey semi-detached home offering 1,524 sq ft of beautifully designed living space. Ready to move into from winter 2025, this brand new home features two generously sized bedrooms on both the first and top floors, along with three modern bathrooms. The ground floor boasts a spacious open-plan living and dining area, perfect for entertaining, with views over the garden.

View Brochure

Highcroft exterior shot of the daffodill

The Daffodil

This beautiful 4-bedroom Daffodil with a detached garage is a 3 storey home. You'll love the spacious open plan kitchen and dinning room, which even has space for a family play area. In the utility room there is an exterior door that leads out to the garden. The separate living room comes with a log burner, perfect for those cosy nights in, with large bay windows letting natural light fill the room.

On the first floor you will find 3 double-bedrooms including bedroom 1 which features fitted wardrobes and an ensuite. Make your way to the second floor, and you’ll find the large second bedroom which benefits from an ensuite.

View Brochure

Highcroft Exterior shot of The Peony

The Peony

Part of our new release in Heronsbrook place, The Peony is a beautifully designed 4 bedroom detached house. This spacious home features an open plan kitchen and dining room and separate living room. The home also has 4 bathroom, 2 of which are en-suites to bedroom 1 and 2. The home is split across 3 floors with 2 bedrooms and a bathroom on the second floor. The home also benefits from a separate study on the first floor and rear garden.

View Brochure

The Waterlily Home

The Water Lily

The Water Lily is a beautiful 4-bedroom detached home complemented by modern interiors and open plan living. This spacious 1474 sq ft home features a rear back garden and private parking alongside the 2 en-suite bedrooms and a separate utility area.

View Brochure

The Daffodil 5 Bedroom Home

The Daffodil

This beautiful 5-bedroom Daffodil with a detached garage is a 3 storey home. You'll love the spacious open plan kitchen and dinning room, which even has space for a family play area. In the utility room there is an exterior door that leads out to the garden. The separate living room comes with a log burner, perfect for those cosy nights in, with large bay windows letting natural light fill the room.

On the first floor you will find 3 double-bedrooms including bedroom 1 which features fitted wardrobes and an ensuite. Make your way to the second floor, and you’ll find the large second bedroom which benefits from an ensuite

View Brochure

Discover Your New Home at Highcroft

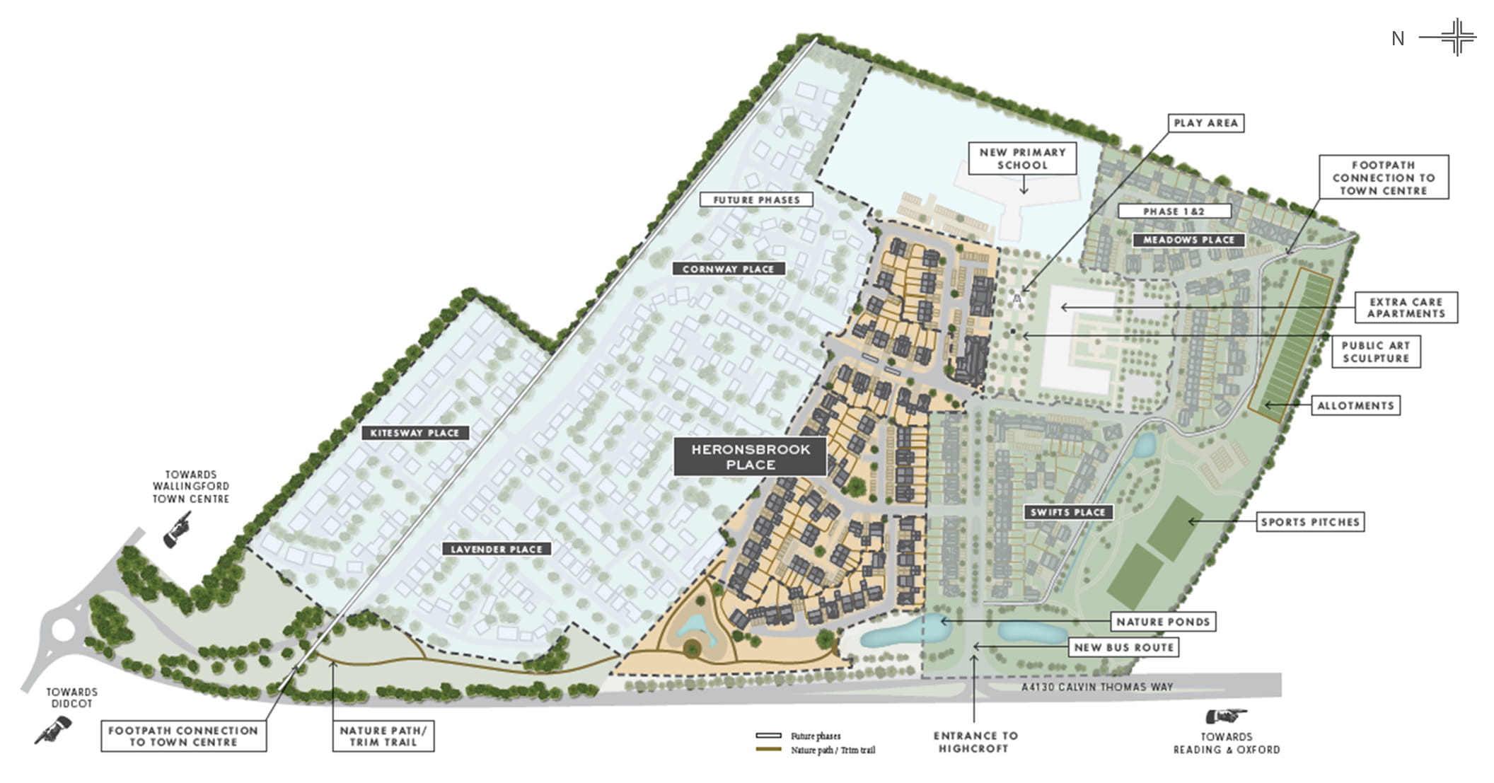
Site Plan

Image of overhead Site Plan at Highcroft
Image of overhead phase 3 Site Plan at Highcroft
An Aerial View of Wallingford

Brochures

Highcroft Host Brochure Thumbnail

Highcroft Heronsbrook Place Host Brochure

Download
Brochure Thumbnail

Bluebell Apartments Brochure

Download Icon
Highcroft Rooted in Wallingford Brochure Thumbnail

Enhancing the Community

Download
Highcroft - Education Guide

Education Guide

Download Icon

What Are the Benefits of Buying New?

Here Are Our Top Reasons to Buy New at Highcroft:

Lightbulb Icon

Energy efficiency:

Buying new means a better insulated, more energy efficient home, compared to an older property*.
Tools Icon

Less maintenance:

A new build home requires lower maintenance compared to an older house, saving you time and money.
Paint Icon

A blank canvas:

When you move into a new home at Highcroft, your spacious and neutral interior are the perfect blank canvas on which to create a home to suit your individual taste and lifestyle.
House Icon

Homes designed for life:

Our homes are carefully considered to promote sustainability, wellbeing and flexible living. Our house types are designed for today’s lifestyle, combining open plan living, light filled rooms, utility rooms, and ensuite bathrooms.
House Icon

Home Finishes:

Buy your home off plan and you’ll be able to choose from a selection of high-quality kitchens and bathrooms, with a selection of finishes to suit you.
Location Icon

Convenient location:

Our development is designed with sustainability in mind. Highcroft is located close to local schools and amenities and has good transport links. Highcroft is conveniently located 15 minute from Wallingford Town Council and there will be a new primary school on site coming soon.
Community Icon

Enabling thriving communities for the long-term:

We work with Highcroft residents to create places that strengthen the community, improve people's quality of life and create a lasting social impact beyond the development.
Award Icon

Peace of mind:

At Highcroft your new home is covered by a NHBC industry-regulated insurance scheme covering the structural integrity of your new home from years three to 10. The first two years of the warranty is provided by us. This means we take responsibility for fixing any quality issues during this period after you move in.

Location

location icon

The map cannot be loaded

Please try again by refreshing the page, or come back later.

Travel Timeline

Cholsey Station

3.2 miles

Iconised image of a bicycle

17 mins

Iconised image of a car

7 mins

Didcot Parkway

5.2 miles

Iconised image of a car

11 mins

Iconised image of a bicycle

25 mins

Heathrow Airport

37 miles

Iconised image of a car

56 mins

Register Interest

Thank you for your interest in this development. If you have provided a telephone number we may call you to discuss your requirements.

What type of visit would you like? *

What date would you like to arrange your viewing?

Best time of day

It is really important to us that you know exactly how we look after your personal information and what we will use it for. For further information please read our Privacy Policy and our website Terms and Conditions.

The Berkeley Group plc's brands (Berkeley, St Edward, St George, St James, St Joseph and St William) have a range of properties that might be suitable for you. A list of companies within each Brand is available here.  If you would like to hear about news, offers and the latest properties please select your preferred contact method below. 

Please select type of contact*

We will always treat your personal details with the utmost care.

You will receive an email confirming your preferences and you can update these or unsubscribe at any time.

* Mandatory Field

Case Studies

An image of Nigel - a purchaser at Highcroft

Love Coming Home to Highcroft

We asked Nigel one of our new purchasers of the Bluebell Apartments what life was like now he has moved to Highcroft.

Read More

Latest News and Inspiration

Summer Fun at Highcroft’s Picnic in the Park

Summer Fun at Highcroft’s Picnic in the Park

Residents gathered for Highcroft’s annual Picnic in the Park, enjoying live music, games, and community spirit.
Read More
Ways to Get Active and Stay Motivated

Ways to Get Active and Stay Motivated

Inspired by this summer’s Olympic Games? Read our expert guide to finding an activity you love.
Read More
Highcroft Celebrates the Summer at Its Picnic in the Park Event

Highcroft Celebrates the Summer at Its Picnic in the Park Event

Highcroft residents and members of the local community enjoyed the family friendly Picnic in the Park summer event.
Read More
find

Find

Calvin Thomas Way, Wallingford, OX10 0FN

An icon of a telephone

Call

01865 987165

Open 7 days a week, 10am - 5pm.

share

Share

Disclaimers

Where applicable, images, CGIs and photography are indicative only.
Site Plans / Site Maps are indicative only and subject to change [and subject to planning]. In line with our policy of continuous improvement, we reserve the right to alter the layout, building style, landscaping and specification at any time without notice.
Your attention is drawn to the fact that in rare circumstances it may not be possible to obtain the exact products or materials referred to in the specification. Berkeley Group plc reserves the right to alter, amend or update the specification, which may include changes in the colour, material and / or brand specified. In such cases, a similar alternative will be provided. Berkeley Group plc reserves the right to make these changes as required. A number of choices and options are available to personalise your home. Choices and options are subject to timeframes, availability and change.
Floorplans shown are for approximate measurements only. Exact layouts and sizes may vary. All measurements may vary within a tolerance of 5%. The dimensions are not intended to be used for carpet sizes, appliance sizes or items of furniture.
Maps are not to scale and show approximate locations only.
All distances or journey / travel times are approximate and may not be direct. Where applicable, times have been established using relevant sources (maps.google.co.uk/nationalrail.co.uk).